PROJEKT PSKP RS 1.2S

  • Home
  • PROJEKT PSKP RS 1.2S

Technologie i konstrukcja

Budynek Podstawowej Stacji Kontroli Pojazdów z jednym stanowiskiem diagnostycznym i dwoma stanowiskami serwisowymi. Zaprojektowany w technologii tradycyjnej, murowanej. Budynek dwukondygnacyjny z poddaszem użytkowym. W budynku zaprojektowano wymagane przepisami zaplecze biurowe i pomieszczenia socjalne przeznaczone dla pracowników serwisu.

Szacunkowy koszt

Szacunkowy koszt prac budowlanych wynosi 1 450 000 PLN.

Podana kwota ma charakter informacyjny, do obliczeń przyjęto koszt budowy 1m2 powierzchni użytkowej w branży budowlanej w przedziale 3 000 – 4000 PLN netto.

Pozostałe informacje

Projekt posiada aktualny kosztorys inwestorski.

Podane dane mają charakter orientacyjny i mogą odbiegać od danych zawartych w dokumentacji projektowej.

Realizacja – Legionowo, woj. mazowieckie

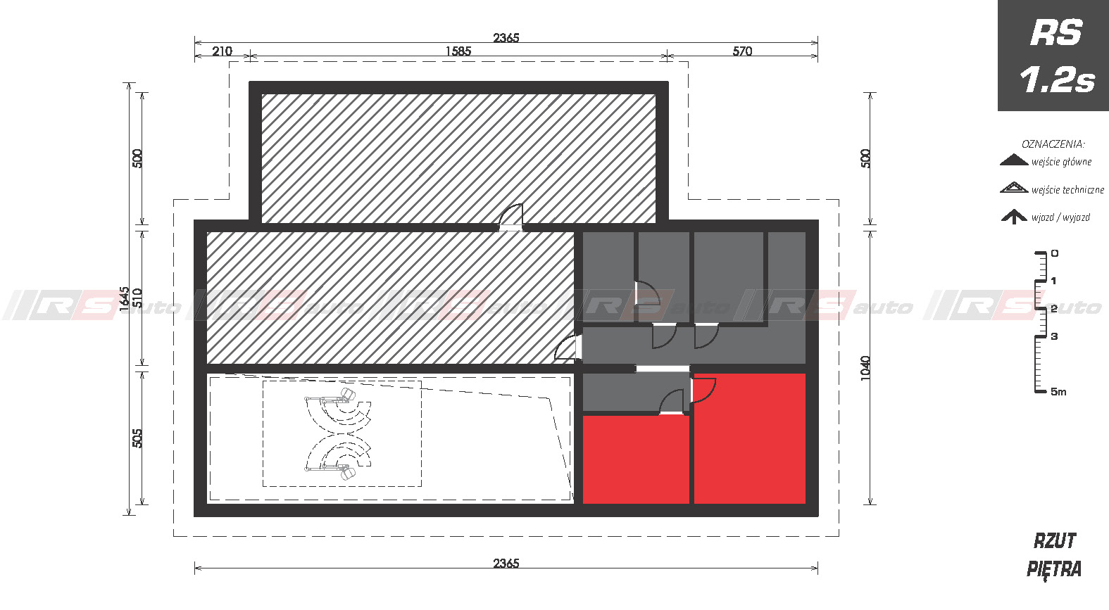
Wymiary

Diagnostyka:75,2 m2
Pom. serwisowe:142,6 m2
Pom. biurowe:74,7 m2
Pom. sanitarne i techniczne: 95,5 m2
Powierzchnia zabudowy:348,1 m2
Powierzchnia użytkowa:388,0 m2
Kubatura brutto:1300 m3
Wysokość budynku:9,4 m
Spadek dachu:30° / 57%
Konstrukcja:murowana
Kondygnacje:2