PROJEKT PSKP RS 1.1E

  • Home
  • PROJEKT PSKP RS 1.1E

Technologie i konstrukcja

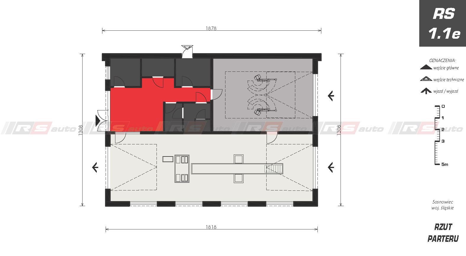
Budynek Podstawowej Stacji Kontroli Pojazdów z jednym stanowiskiem diagnostycznym i jednym stanowiskiem serwisowym, zaprojektowany został w technologii tradycyjnej, murowanej. Jednokondygnacyjny z zapleczem biurowym i pomieszczeniami technicznymi, socjalnymi przeznaczonymi dla pracowników stacji. Budynek należy do najmniejszych obiektów łączących w sobie funkcję diagnostyki (PSKP) i serwisu.

Szacunkowy koszt

Szacunkowy koszt prac budowlanych wynosi 780 000 PLN.

Podana kwota ma charakter informacyjny, do obliczeń przyjęto koszt budowy 1m2 powierzchni użytkowej w branży budowlanej w przedziale 3 000 – 4000 PLN netto.

Pozostałe informacje

Podane dane mają charakter orientacyjny i mogą odbiegać od danych zawartych w dokumentacji projektowej.

Realizacja – Sosnowiec, woj. śląskie

Wymiary

Diagnostyka:100,2 m2
Pom. serwisowe:53,7 m2
Pom. biurowe:15,9 m2
Pom. sanitarne i techniczne: 33,7 m2
Powierzchnia zabudowy:238,1 m2
Powierzchnia użytkowa:203,6 m2
Kubatura brutto:1238,33 m3
Wysokość budynku:6,1 m
Spadek dachu:7%
Konstrukcja:murowana
Kondygnacje:1