PROJEKT OSKP RS 4.0E

  • Home
  • PROJEKT OSKP RS 4.0E

Technologie i konstrukcja

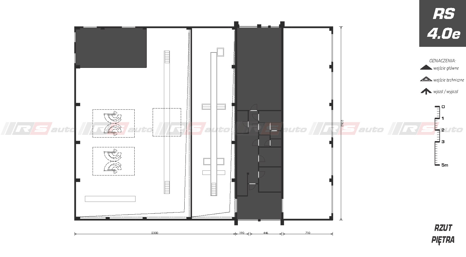
Budynek Okręgowej Stacji Kontroli Pojazdów z jednym stanowiskiem diagnostycznym, jednym stanowiskiem myjni automatycznej, jednym stanowiskami serwisowymi dla samochodów ciężarowych i trzema stanowiskami serwisowymi dla samochodów osobowych. Zaprojektowany w technologii tradycyjnej, murowanej (część biurowa)i w technologii szkieletowej z okładziną z płyt warstwowych (serwis). Dwukondygnacyjny z zapleczem biurowym i pomieszczeniami technicznymi, socjalnymi przeznaczonymi dla pracowników stacji.

Szacunkowy koszt

Szacunkowy koszt prac budowlanych wynosi 3 150 000 PLN.

Podana kwota ma charakter informacyjny, do obliczeń przyjęto koszt budowy 1m2 powierzchni użytkowej w branży budowlanej w przedziale 3 000 – 4000 PLN netto.

Pozostałe informacje

Podane dane mają charakter orientacyjny i mogą odbiegać od danych zawartych w dokumentacji projektowej.

Realizacja – Lubstów, woj. wielkopolskie

Wymiary

Diagnostyka:167,5 m2
Pom. serwisowe:567,9 m2
Pom. biurowe:55,1 m2
Pom. sanitarne i techniczne: 158,6 m2
Powierzchnia zabudowy:1025,0 m2
Powierzchnia użytkowa:949,1 m2
Kubatura brutto:7589,0 m3
Wysokość budynku:8,3 m
Spadek dachu:2-3%
Konstrukcja:szkieletowa / murowana
Kondygnacje:2