PROJEKT OSKP RS 4.0D

  • Home
  • PROJEKT OSKP RS 4.0D

Technologie i konstrukcja

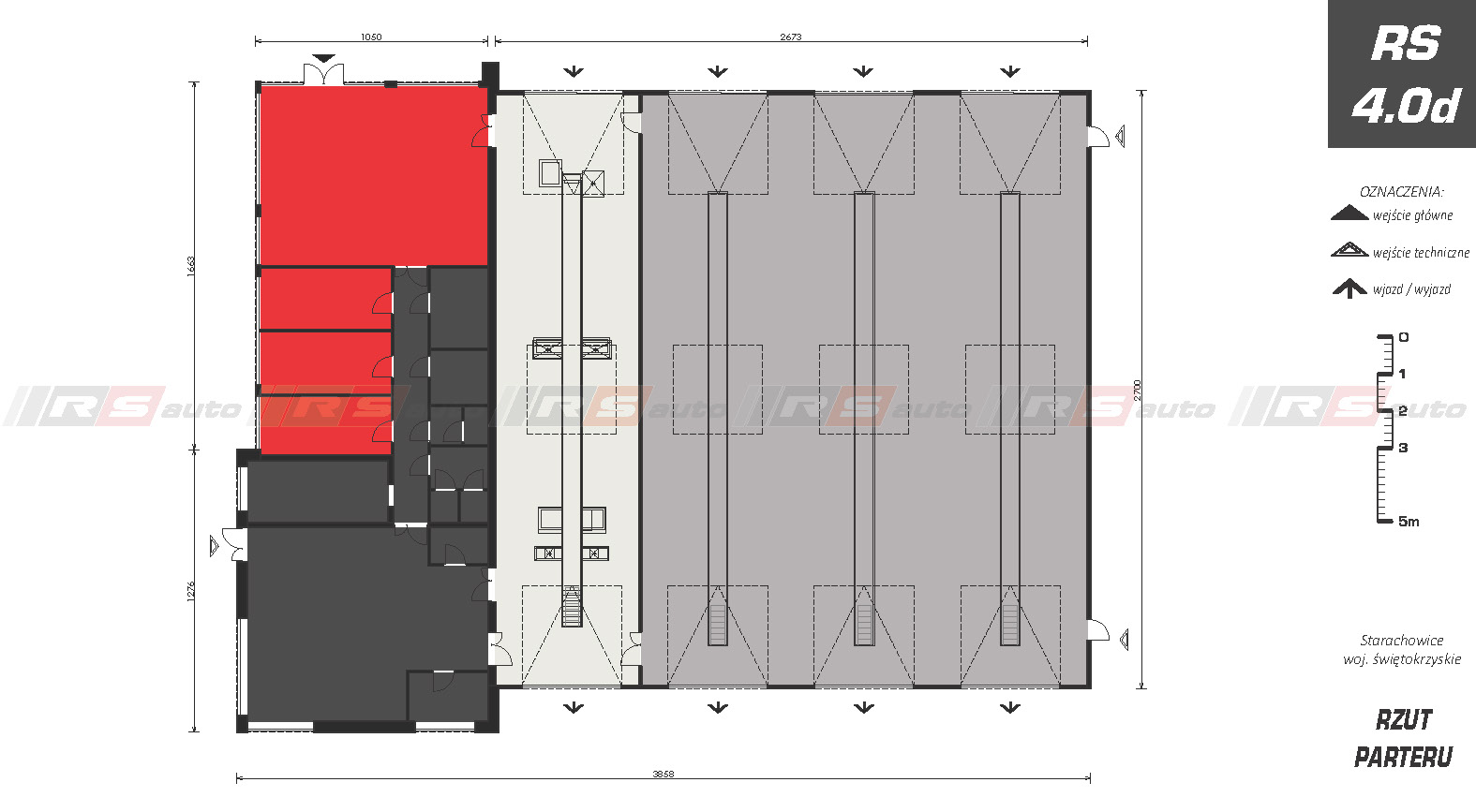
Budynek Okręgowej Stacji Kontroli Pojazdów z jednym stanowiskiem diagnostycznym i trzema stanowiskami serwisowymi dla samochodów ciężarowych. Zaprojektowany w technologii tradycyjnej, murowanej (część biurowa)i w technologii szkieletowej z okładziną z płyt warstwowych (serwis). Dwukondygnacyjny z zapleczem biurowym i pomieszczeniami technicznymi, socjalnymi przeznaczonymi dla pracowników stacji.

Szacunkowy koszt

Szacunkowy koszt prac budowlanych wynosi 3 950 000 PLN.

Podana kwota ma charakter informacyjny, do obliczeń przyjęto koszt budowy 1m2 powierzchni użytkowej w branży budowlanej w przedziale 3 000 – 4000 PLN netto.

Pozostałe informacje

Podane dane mają charakter orientacyjny i mogą odbiegać od danych zawartych w dokumentacji projektowej.

Realizacja – Starachowice, woj. świętokrzyskie

Wymiary

Diagnostyka:170,4 m2
Pom. serwisowe:528,3 m2
Pom. biurowe:352,0 m2
Pom. sanitarne i techniczne: 148,6 m2
Powierzchnia zabudowy:1061,0 m2
Powierzchnia użytkowa:1199,3 m2
Kubatura brutto:9498,0 m3
Wysokość budynku:9,7 m
Spadek dachu:6%
Konstrukcja:murowana
Kondygnacje:2