PROJEKT OSKP RS 2X

  • Home
  • PROJEKT OSKP RS 2X

Technologie i konstrukcja

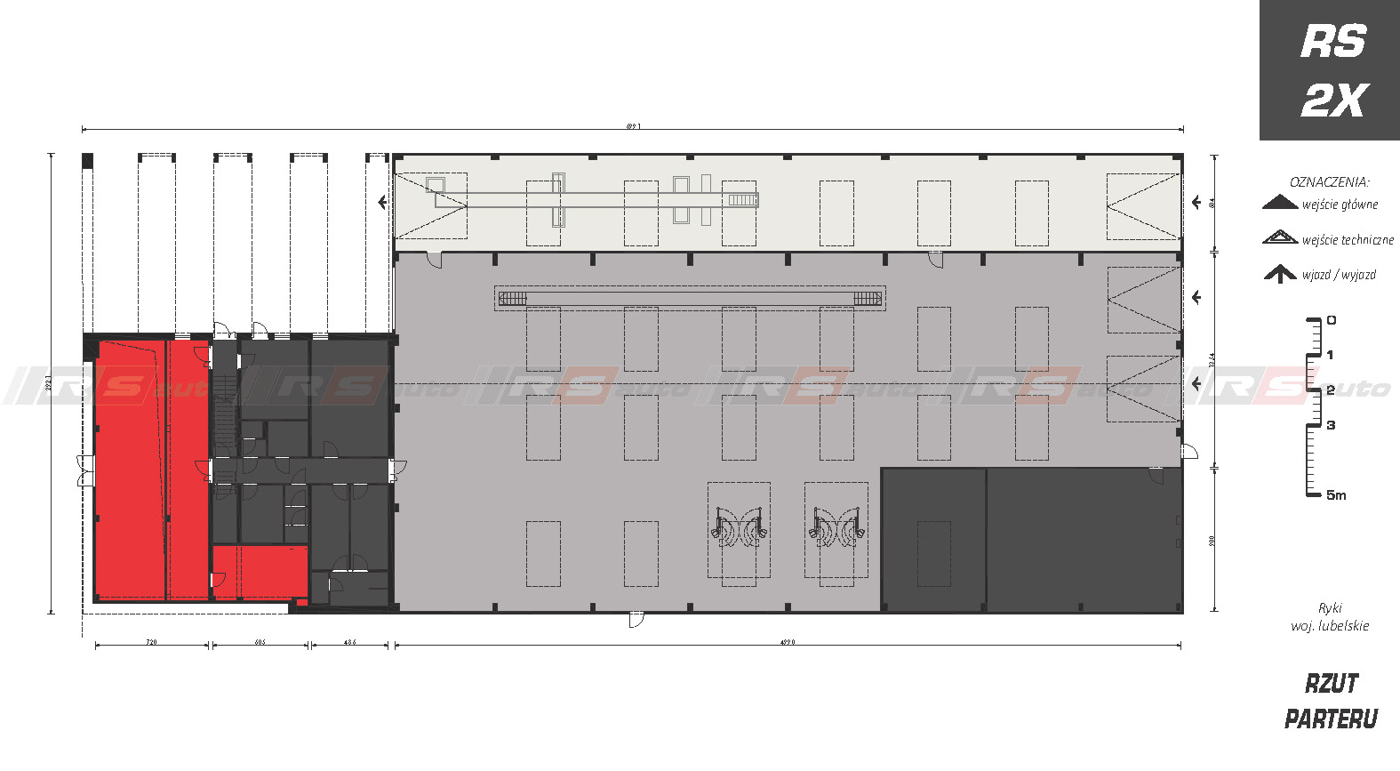
Budynek Okręgowej Stacji Kontroli Pojazdów z halą serwisową o powierzchni ponad 1000m2. Zaprojektowany w technologii tradycyjnej, murowanej (część biurowa)i w technologii szkieletowej z okładziną z płyt warstwowych (serwis). Dwukondygnacyjny z zapleczem biurowym i pomieszczeniami technicznymi, socjalnymi przeznaczonymi dla pracowników stacji.

Szacunkowy koszt

Szacunkowy koszt prac budowlanych wynosi 6 950 000 PLN.

Podana kwota ma charakter informacyjny, do obliczeń przyjęto koszt budowy 1m2 powierzchni użytkowej w branży budowlanej w przedziale 3 000 – 4000 PLN netto.

Pozostałe informacje

Podane dane mają charakter orientacyjny i mogą odbiegać od danych zawartych w dokumentacji projektowej.

Realizacja – Ryki, woj. Lubelskie

Wymiary

Diagnostyka:300,0 m2
Pom. serwisowe:1013,8 m2
Pom. biurowe:705,3 m2
Pom. sanitarne i techniczne: 305,4 m2
Powierzchnia zabudowy:1 818,7 m2
Powierzchnia użytkowa:2 324,5 m2
Kubatura brutto:12 745,5 m3
Wysokość budynku:8,25 m
Spadek dachu:10%
Konstrukcja:szkieletowa / murowana
Kondygnacje:2