PROJEKT OSKP RS 1.7A

  • Home
  • PROJEKT OSKP RS 1.7A

Technologie i konstrukcja

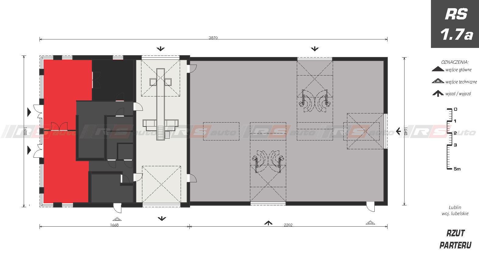
Budynek Okręgowej Stacji Kontroli Pojazdów z jednym stanowiskiem diagnostycznym i siedmioma stanowiskami serwisowymi. Zaprojektowany w technologii tradycyjnej, murowanej (część biurowa)i w technologii szkieletowej z okładziną z płyt warstwowych (serwis). Dwukondygnacyjny z zapleczem biurowym, poczekalnią dla klientów i pomieszczeniami technicznymi, socjalnymi przeznaczonymi dla pracowników stacji. Piętro przeznaczone na funkcję biurową.

Szacunkowy koszt

Szacunkowy koszt prac budowlanych wynosi 2 650 000 PLN.

Podana kwota ma charakter informacyjny, do obliczeń przyjęto koszt budowy 1m2 powierzchni użytkowej w branży budowlanej w przedziale 3 000 – 4000 PLN netto.

Pozostałe informacje

Podane dane mają charakter orientacyjny i mogą odbiegać od danych zawartych w dokumentacji projektowej.

Realizacja – Lublin, woj. lubelskie

Wymiary

Diagnostyka:91,1 m2
Pom. serwisowe:349,2 m2
Pom. biurowe:52,1 m2
Pom. sanitarne i techniczne: 315,6 m2
Powierzchnia zabudowy:640,8 m2
Powierzchnia użytkowa:808,0 m2
Kubatura brutto:1238,33 m3
Wysokość budynku:8,45 m
Spadek dachu:7%
Konstrukcja:murowana
Kondygnacje:2