PROJEKT OSKP RS 1.4C

  • Home
  • PROJEKT OSKP RS 1.4C

Technologie i konstrukcja

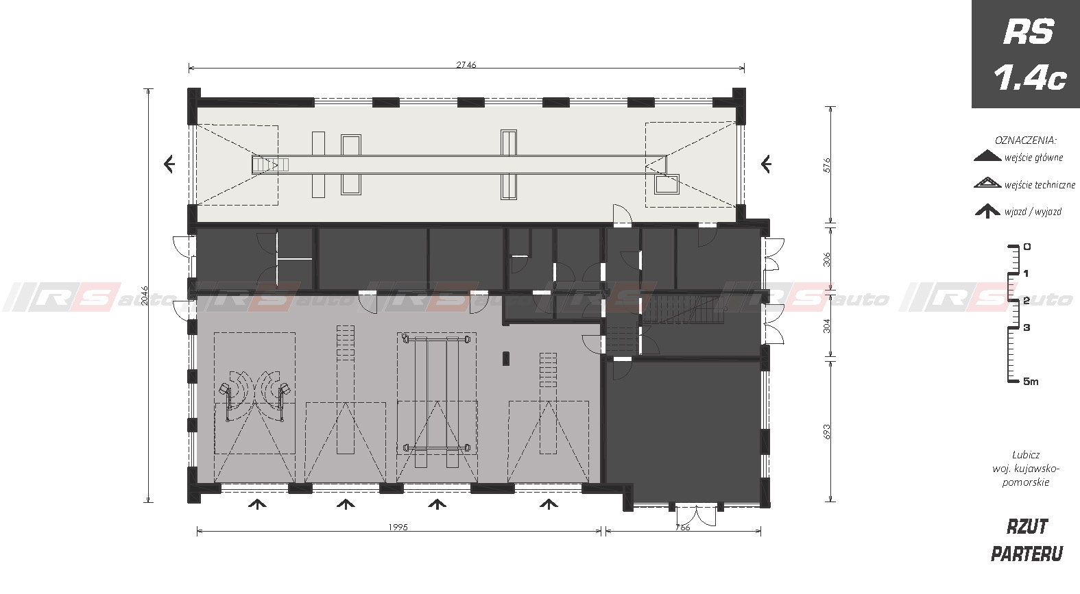
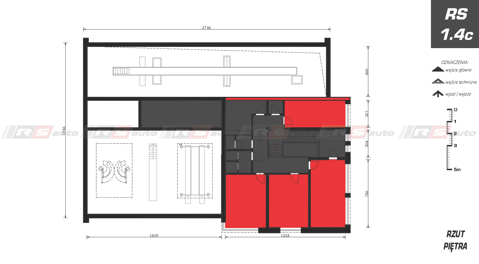
Budynek Okręgowej Stacji Kontroli Pojazdów z jednym stanowiskiem diagnostycznym i czterema stanowiskami serwisowymi. Zaprojektowany w technologii tradycyjnej, murowanej. Dwukondygnacyjny z zapleczem biurowym, poczekalnią dla klientów i pomieszczeniami technicznymi, socjalnymi przeznaczonymi dla pracowników stacji. Piętro przeznaczone na funkcję biurową.

Szacunkowy koszt

Szacunkowy koszt prac budowlanych wynosi 2 300 000 PLN.

Podana kwota ma charakter informacyjny, do obliczeń przyjęto koszt budowy 1m2 powierzchni użytkowej w branży budowlanej w przedziale 3 000 – 4000 PLN netto.

Pozostałe informacje

Podane dane mają charakter orientacyjny i mogą odbiegać od danych zawartych w dokumentacji projektowej.

Realizacja – Lubicz, woj. kujawsko – pomorskie

Wymiary

Diagnostyka:151,9 m2
Pom. serwisowe:178,7 m2
Pom. biurowe:168,8 m2
Pom. sanitarne i techniczne: 175,1 m2
Powierzchnia zabudowy:590,3 m2
Powierzchnia użytkowa:674,5 m2
Kubatura brutto:4545,0 m3
Wysokość budynku:7,7 m
Spadek dachu:7%
Konstrukcja:murowana
Kondygnacje:2