PROJEKT OSKP RS 1.2B

  • Home
  • PROJEKT OSKP RS 1.2B

Technologie i konstrukcja

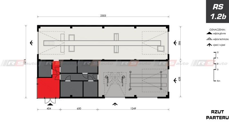
Budynek Okręgowej Stacji Kontroli Pojazdów z jednym stanowiskiem diagnostycznym i dwoma stanowiskami serwisowymi. Zaprojektowany w technologii szkieletowej z okładziną z płyt warstwowych. Jednokondygnacyjny z zapleczem biurowym, poczekalnią dla klientów
i pomieszczeniami technicznymi, socjalnymi przeznaczonymi dla pracowników stacji.

Minimalna długość budynku, która pozwala na odpowiednie umiejscowienie kanału diagnostycznego oraz wszystkich niezbędnych urządzeń potrzebnych w OSKP.

Szacunkowy koszt

Szacunkowy koszt prac budowlanych wynosi 990 000 PLN.

Podana kwota ma charakter informacyjny, do obliczeń przyjęto koszt budowy 1m2 powierzchni użytkowej w branży budowlanej w przedziale 3 000 – 4000 PLN netto.

Pozostałe informacje

Podane dane mają charakter orientacyjny i mogą odbiegać od danych zawartych w dokumentacji projektowej.

Realizacja – Babice, woj. małopolskie

Wymiary

Diagnostyka:132,6 m2
Pom. serwisowe:76,4 m2
Pom. biurowe:17,7 m2
Pom. sanitarne i techniczne: 45,1 m2
Powierzchnia zabudowy:293,4 m2
Powierzchnia użytkowa:271,8 m2
Kubatura brutto:1940 m3
Wysokość budynku:6,6 m
Spadek dachu:2-3° / 10%
Konstrukcja:szkieletowa
Kondygnacje:1