PROJEKT OSKP RS 1.2A

  • Home
  • PROJEKT OSKP RS 1.2A

Technologie i konstrukcja

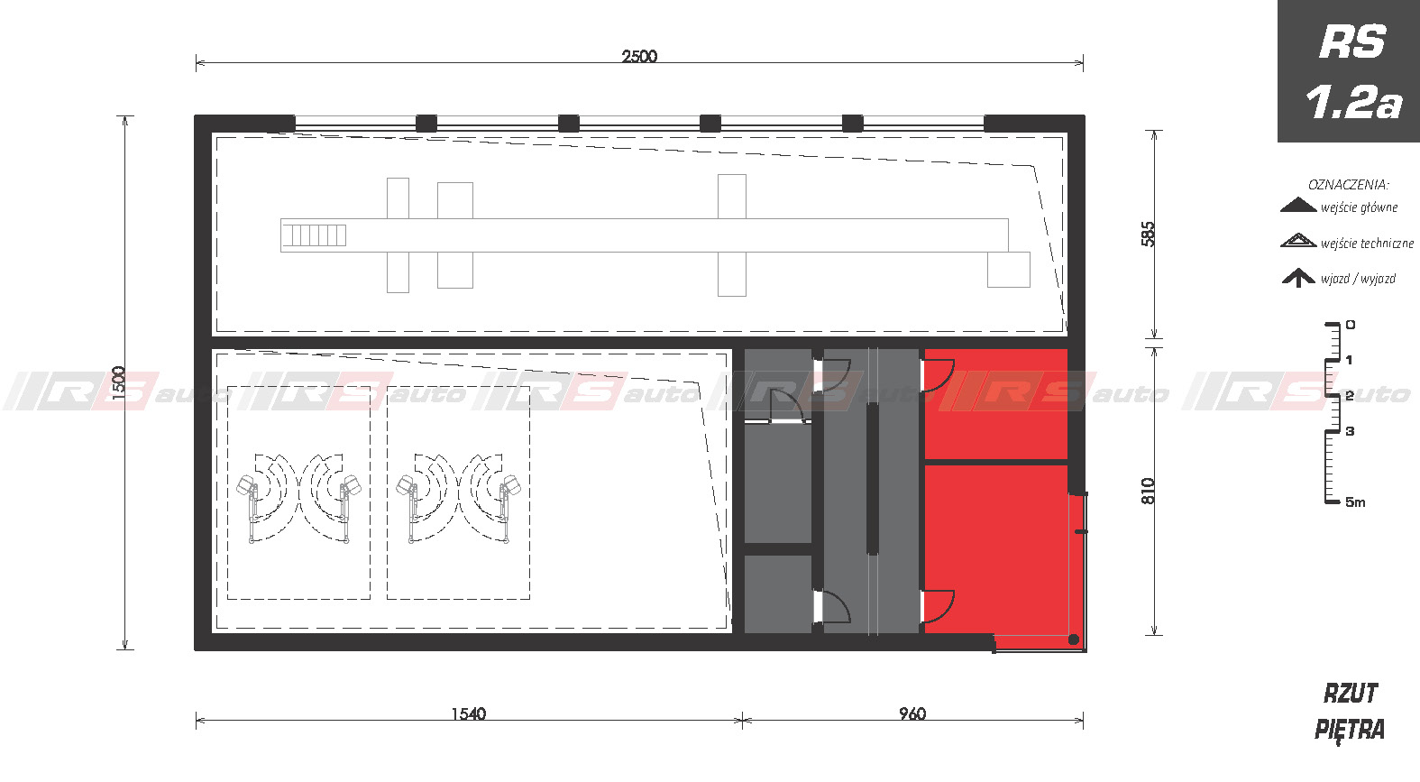
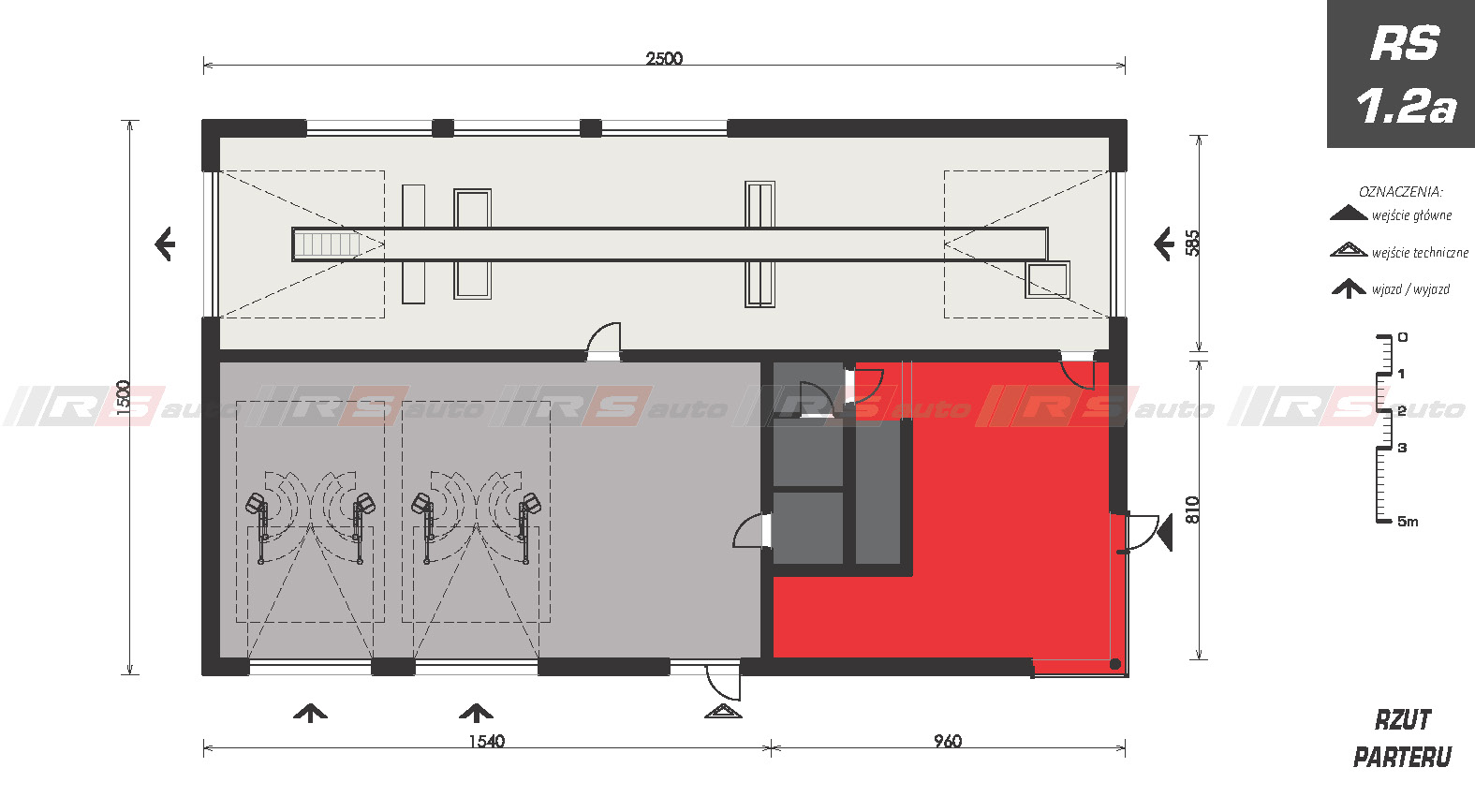
Budynek Okręgowej Stacji Kontroli Pojazdów z jednym stanowiskiem diagnostycznym i dwoma stanowiskami serwisowymi. Zaprojektowany w technologii tradycyjnej, murowanej. Dwukondygnacyjny z zapleczem biurowym, poczekalnią dla klientów i pomieszczeniami technicznymi, socjalnymi przeznaczonymi dla pracowników stacji. Piętro przeznaczone na funkcję biurową z wejściem z części ogólnodostępnej.

Długość budynku pozwala na odpowiednie umiejscowienie kanału diagnostycznego oraz wszystkich niezbędnych urządzeń potrzebnych w OSKP.

Szacunkowy koszt

Szacunkowy koszt prac budowlanych wynosi 1 400 000 PLN.

Podana kwota ma charakter informacyjny, do obliczeń przyjęto koszt budowy 1m2 powierzchni użytkowej w branży budowlanej w przedziale 3 000 – 4000 PLN netto.

Pozostałe informacje

Projekt posiada aktualny kosztorys inwestorski.

Podane dane mają charakter orientacyjny i mogą odbiegać od danych zawartych w dokumentacji projektowej.

Wymiary

Diagnostyka:141,5 m2
Pom. serwisowe:119,5 m2
Pom. biurowe:92,7 m2
Pom. sanitarne i techniczne: 52,4 m2
Powierzchnia zabudowy:375,0 m2
Powierzchnia użytkowa:406,1 m2
Kubatura brutto:2440 m3
Wysokość budynku:7,0 m
Spadek dachu:2-3° / 5%
Konstrukcja:murowana
Kondygnacje:2